昊梵体育网

110平装成大平层|5个显大细节,直接抄作业

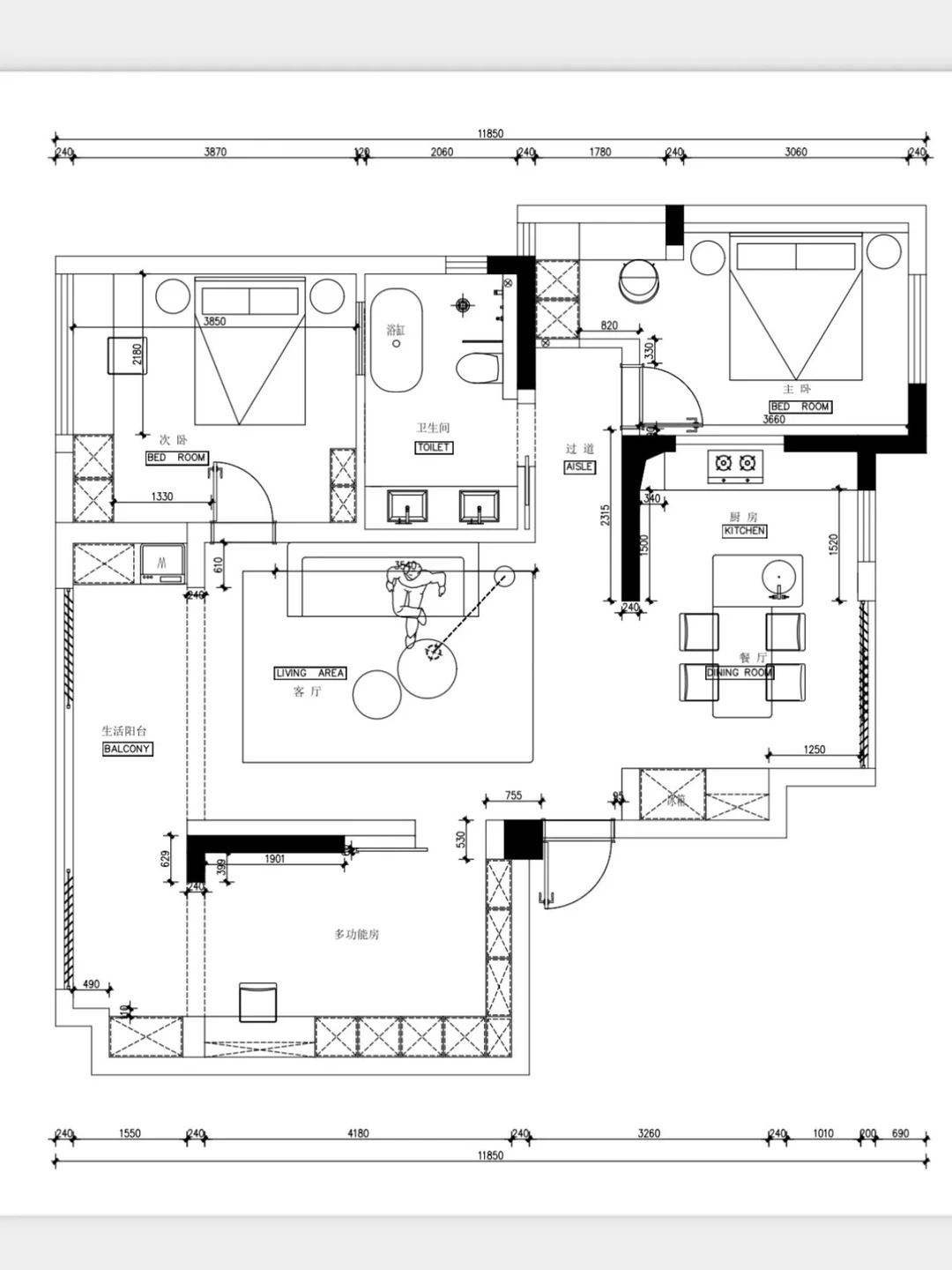
原始户型是三室两卫,我狠心砸掉一间房,改造成两室一卫。客餐厨一体打通后,闺蜜来我家第一句话都是:你家看着得有150平吧?

今天就给你们总结5个 “显大又高级” 的抄作业细节,正在装修的姐妹直接收藏!✅

1️⃣全屋瓷砖通铺 + 同色环氧彩砂
全屋通铺1500×750mm仿微水泥柔光砖,客厅、餐厅、厨房、阳台无缝延伸。没有过门石,没有波导线,缝隙颜色做到和砖几乎一样。地面一眼望过去像一整片,空间感直接翻倍。

2️⃣ 不做复杂背景墙
什么岩板、木格栅、大理石通通不要!大白墙+合适软装,不光省钱,还永远不会过时。你想换软装风格,白墙怎么搭都行。

3️⃣客餐厨一体
三个空间之间的隔墙全敲掉,平时活动更自由,做饭的时候也能和客厅的人聊天。视觉上一眼望穿,采光和通透感都拉满了。

4️⃣通顶门 + 4cm极窄踢脚线
两个卧室都做通顶隐形门,视觉上把层高拉到顶。配上4cm极窄不锈钢踢脚线,干净利落,大平层的高级感瞬间就有了。

5️⃣无主灯设计
悬浮吊顶 + 极窄边框射灯 + 线性灯,全屋统一4000K色温。白天是极简高级感,晚上灯光一开,暖暖的氛围感直接把家变成治愈系小屋🌙

姐妹们,硬装真的越简单越显大,你家装修踩过哪些坑?评论区聊聊👇